Подробное описание линейные траверсы с центральной проушиной
Скачать опросный лист
Траверса с центральной проушиной линейная

Грузоподъемность (Вес поднимаемого груза), тн | ||
| Температура эксплуатации, °С | ||
| Расстояние между точками подвеса, мм | L | |
| Высота подвеса, мм | Hmax | |
| Размеры центральной проушины, мм | А | |
| В | ||
Траверса с центральной проушиной линейная переставная

Грузоподъемность (Вес поднимаемого груза), тн | ||
| Температура эксплуатации, °С | ||
| Расстояние между точками подвеса, мм | L | |
| Высота подвеса, мм | Hmax | |
| Размеры центральной проушины, мм | А | |
| В | ||
| Переставные точки подвеса | F | |
| n | ||
Траверса с вантовой подвеской линейная

Грузоподъемность (Вес поднимаемого груза), тн | ||
| Температура эксплуатации, °С | ||
| Расстояние между точками подвеса, мм | L | |
| Высота подвеса, мм | Hmax | |
| Размеры центральной проушины, мм | А | |
| В | ||
Траверса с вантовой подвеской линейная
исполнение 2

Грузоподъемность (Вес поднимаемого груза), тн |
| |
| Температура эксплуатации, °С |
| |
| Расстояние между точками подвеса, мм | L |
|
| Высота подвеса, мм | Hmax |
|
| Размеры центральной проушины, мм | А |
|
В |
| |
| Переставная проушина | F |
|
n |
| |
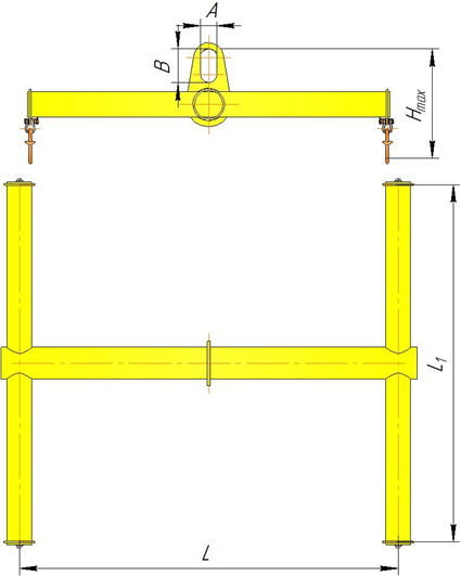
Траверса с центральной проушиной
H-образная

| Грузоподъемность, тн | ||
| Температура эксплуатации, °С | ||
| Расстояние между точками подвеса, мм | L | |
| L1 | ||
| Высота подвеса, мм | Hmax | |
| Размеры центральной проушины, мм | А | |
| В | ||
Траверса с вантовой подвеской
рамная

| Грузоподъемность, тн | ||
| Температура эксплуатации, °С | ||
| Расстояние между точками подвеса, мм | L | |
| L1 | ||
| Высота подвеса, мм | Hmax | |
| Размеры центральной проушины, мм | А | |
| В | ||
грузоподъёмность 32 тонны, длинна 3 метра + крюк